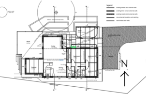
Originally built in the 1970s, our brick-veneer, flat-roofed house was hot in summer and cold in winter. In 2022 we completed a sustainability retrofit to improve thermal efficiency and comfort.
To achieve this, we put insulation in a new stud wall on the outside of the existing brick walls and reclad with Colorbond and timber.
A new light-coloured Colorbond skillion roof with clerestory windows were installed. North-facing glazing was increased, south-facing was reduced and double-glazing was retrofitted throughout. Summer shading with eaves and deciduous climbers were included in the design.
The house is completely supplied by tank water which is heated by heat pump (gas has been disconnected). Two rain-gardens have been installed to absorb driveway run-off and roof overflow. The wood heater was removed and replaced with heat pump hydronic radiators and a new ceiling fan (there is no air-conditioner).
A 17kW solar panel system, 32kWh battery and DC EV charger for our electric vehicle have been installed. Two composting bays have been constructed to process kitchen, garden and human waste from the composting toilet in the shed. Waste is minimised or recycled – our family of four went six months without putting our rubbish bin out! Most of the time, we walk, ride or PT to work, school, sport and the shops.
![{"capture_mode":"AutoModule","faces":[]}](https://sustainablehouseday.com/wp-content/uploads/2026/03/front-zoomed-in-portrait-scaled.jpg)



![{"capture_mode":"AutoModule","faces":[]}](https://sustainablehouseday.com/wp-content/uploads/2026/03/living-room-north-facing-scaled.jpg)
![{"capture_mode":"AutoModule","faces":[]}](https://sustainablehouseday.com/wp-content/uploads/2026/03/heat-pumps-south-side-scaled.jpg)
![{"capture_mode":"AutoModule","faces":[]}](https://sustainablehouseday.com/wp-content/uploads/2026/03/front-house-close-up-scaled.jpg)





![{"capture_mode":"AutoModule","faces":[]}](https://sustainablehouseday.com/wp-content/uploads/2026/03/BR1-north-facing-scaled.jpg)

![{"capture_mode":"AutoModule","faces":[]}](https://sustainablehouseday.com/wp-content/uploads/2026/03/front-house-close-up-1-scaled.jpg)




